Gratis waardebepaling

Gratis waardebepaling voor uw woning

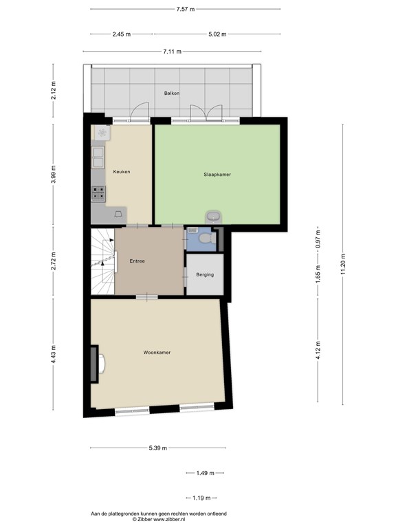
Hertogstraat 37

Nijmegen

Vraagprijs: € 450.000
vierkante meter 136m²
kamers 6 kamers
Locatie Nijmegen
Energielabel C

Omschrijving

In het levendige hart van Nijmegen ligt aan de Hertogstraat 37 deze ruime bovenwoning uit 1952. De woning heeft een woonoppervlakte van circa 136 m² en beschikt over een fijn dakterras aan de achterzijde. De woning is jarenlang in gebruik geweest als studentenhuis (met vergunning) en is inmiddels leeg. Daarmee biedt het pand volop mogelijkheden voor wie zoekt naar een karakteristiek pand met potentie.

De Hertogstraat is een gezellige en dynamische straat, met horeca en winkels binnen handbereik. De ligging is ideaal voor jongelui, studenten en starters die de levendigheid van de stad willen combineren met een goede bereikbaarheid per auto. De omgeving is volop in ontwikkeling, mede dankzij de herontwikkeling van het naastgelegen St. Josephhof.

De woning zelf heeft veel lichtinval, royale ruimtes en een praktische indeling. De begane grond geeft toegang tot de trapopgang en de woonverdiepingen. De huidige indeling biedt mogelijkheden voor meerdere slaapkamers, werkkamer(s) of zelfs een herindeling tot twee appartementen of 4 studio's.

Pluspunten
• Woonoppervlakte circa 136 m²
• Dakterras aan de achterzijde
• Levendige ligging in het centrum van Nijmegen
• Bereikbaar per auto
• Karakteristieke bovenwoning met potentie
• Vergunning voor kamerverhuur (3 bewoners) aanwezig
• Kans om op termijn uit te breiden of te splitsen
• "as is, where is"-clausule van toepassing

Kortom: een ruime bovenwoning op een karakteristieke locatie, met volop mogelijkheden om naar eigen wens te moderniseren of te ontwikkelen.

Optioneel te koop: St. Josephhof 1 – Nijmegen
Direct ernaast bevindt zich St. Josephhof 1, een verhuurd pand met vier studentenkamers. De totale huursom (exclusief servicekosten) bedraagt € 1.515,- per maand, oftewel € 18.180,- per jaar. Dit pand biedt een stabiel huurinkomen en kan desgewenst in combinatie met Hertogstraat 37 worden aangekocht, wat het geheel nog interessanter maakt voor investeerders die hun portefeuille willen uitbreiden.

Voor dit pand hebben we een vraagprijs van € 275.000,- k.k.

Meer informatie of een bezichtiging plannen? Neem contact op met ons.

Kenmerken

Status
Verkocht
Soort woning
Appartement
Bouwjaar
1952