Gratis waardebepaling

Gratis waardebepaling voor uw woning

Pastoor van Laakstraat 6 A

Lent

Vraagprijs: € 635.000

Omschrijving

Karakteristieke twee-onder-een-kapwoning met 4 slaapkamers op een ruim perceel te koop!

Aan de Pastoor van Laakstraat 6a in Lent vind je deze ruime en sfeervolle woning. Gelegen op een ideale locatie ten opzichte van de natuur en het bruisende stadscentrum van Nijmegen. Met 175 m2 aan woonoppervlakte, 443 m2 perceel, 4 slaapkamers (mogelijkheid tot 5 slaapkamers), groene tuin is het hier fijn wonen. De woning is gebouwd in 1926 en is herkenbaar aan de landelijke bouwstijl, met onder andere nog de granito vloer in de gang. Lent is door de jaren heen steeds populairder geworden, mede vanwege de ligging ten opzichte van het stadscentrum van Nijmegen, maar daarnaast ook door alle dagelijkse voorzieningen in de buurt. Zo heeft Lent verschillende supermarkten, veel horeca en daarnaast een treinstation. Er zijn diverse uitvalswegen in de regio voor een goede bereikbaarheid met de auto. De woning heeft een eigen oprit voor twee auto's en een grote schuur (55 m2), ideaal als ruimte voor diverse hobby's.

Indeling:

Begane grond:
Jouw auto parkeer je op eigen terrein, er is plek voor twee auto's. Daarnaast is er rondom de woning ruimte voor openbaar parkeren. Je hebt de keuze om binnen te komen via de voordeur van de woning of de achterom via de tuin. Vanuit de voordeur bereik je de sfeervolle gang met toegang tot de 1e verdieping en woonkamer. Wat direct opvalt, zijn de karakteristieke elementen, zoals de granito vloer, paneeldeuren en glas-in-loodramen. De woon-/eetkamer is ruim en voorzien van veel grote ramen. De erker geeft extra ruimte en sfeer aan deze kamer. Er is een gashaard voor extra sfeer of eventueel als bijverwarming in de koude wintermaanden. Er is een buitendeur om naar de serre te gaan.

Vanuit de woonkamer heb je ook toegang tot de kelder (circa 14 m2) voor opslag. De keuken is momenteel gesloten en bereikbaar via de volgende binnendeur. Er is een mogelijkheid om deze tussenmuur te doorbreken om een nog grotere woonkamer met open keuken te realiseren. De keuken is landelijk en voorzien van diverse inbouwapparatuur. Je kunt hier een tweede eettafel kwijt en vanuit de keuken heb je leuk uitzicht over de groene tuin.
Vanuit de keuken heb je een doorgang naar de bijkeuken en toilet. Ideale ruimte voor witgoedapparatuur en opslag. Tevens is hier de achterdeur richting de tuin en oprit.

1e verdieping:
Op deze verdieping vind je drie ruime slaapkamers van circa 17, 14 en 11 m2. De slaapkamers zijn allen voorzien van een inbouwkast en grote raampartijen. De badkamer is voorzien van een douche, toilet en wastafel.

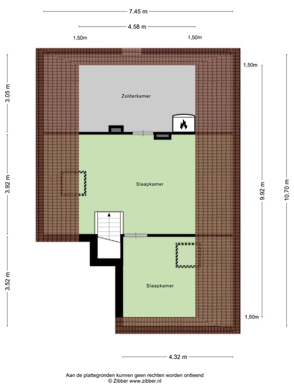
2e verdieping:
Deze sfeervolle en ruime verdieping is momenteel in gebruik als grote slaapkamer met een extra kamer en grote bergruimte. Met kleine aanpassingen kunnen er hier meerdere slaapkamers gerealiseerd worden. Het dak is geïsoleerd en er zijn verschillende dakramen voor daglicht en ventilatie.

Tuin:
Op het ruime perceel van 503 m2 vind je voor alle liefhebbers een fijn plekje. Er is een serre om lekker lang buiten te kunnen zitten, een bijgebouw voor diverse hobby's, verschillende hoekjes om in de zon te zitten, meerdere terrassen voor een grote tafel of lounge en daarnaast nog een grote ruimte voor dieren. Aan de zijkant van de woning is een oprit met plek voor twee auto's.

Bijzonderheden:
* 175 m2 woonoppervlakte
* 443 m2 perceel
* Energielabel D
* Oprit voor 2 auto's
* Sfeervolle twee-onder-een-kapwoning
* 4 slaapkamers
* let op: schuur (55 m2) optioneel bij te koop in overleg

Enthousiast geworden? Neem contact op voor een bezichtiging bij deze mooie woning!

Kenmerken

Status
Te koop
Soort woning
Huis
Bouwjaar
1926